
We've been following the development of Apple's first Dutch retail store for some time now, as issues over historic preservation have slowed the timetable for construction at the landmark Hirsch building in Amsterdam. But things now appear to be coming together as iPhoneclub.nl [Google translation] and One More Thing [Google translation] offer a number of details on plans for the store, which seems to be headed for a February 18 opening.
According to reports, much of the store staff is currently in training at the Amsterdam Hilton, while Geniuses have been trained at a number of UK stores. A third-party company responsible for the maintenance services on the store once it is opened is reportedly set to begin work in mid-February, with One More Thing specifically claiming that the opening will take place on February 18.
Among the interesting developments in recent days was a windstorm over the weekend that pulled away some of the coverings from the exterior of the store to reveal the spiral glass staircase that customers will see front and center upon entering the two-level store.
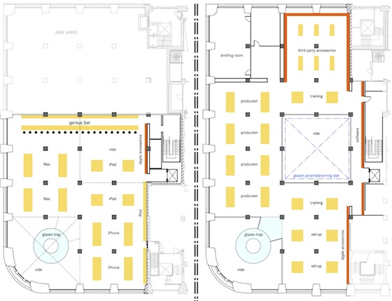
Floor plans obtained by One More Thing show product displays and a massive 20-seat Genius Bar on the first level of the store, with additional product displays, third-party accessories, training and set-up, and a Briefing Room filling out the second floor. The store is topped with a pyramid-shaped glass roof over a portion of the sales floor, with the second floor left open as a void to allow the light to filter down to the first floor and increase the store's openness. Offices for Apple's operations in the region will be located on upper floors of the building.
Article Link: Apple's First Dutch Retail Store to Open in Amsterdam on February 18?