Become a MacRumors Supporter for $50/year with no ads, ability to filter front page stories, and private forums.

MatrixH

macrumors newbie
Original poster
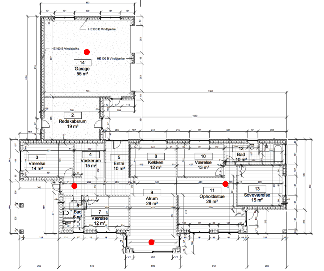
We are building a new brickhouse, both inner and outer walls are made of bricks.

We want a fast and stable Wifi, that will cover the whole house.

How many access points do we need, and where should we place them?

Our own suggestions looks like this: (the red dots is a access point)

1
r8HqS.png


2
LfAus.png


3
CTvIP.png


4
PAjD.png


Which one do you thinks will work best, and do you maybe have a better solution?

 
Will the house be wired with Ethernet? I.e. is every access point connected to the local network through a wire? I would say 3 will be the best, but I would start with 1 first and then get more APs and move from 1 to 2 and 2 to 3 if needed.
 
My parents have a pretty big farm house. And once I installed one NetGear nighthawk r7000 router behind their modem, they're getting 95% of their speeds in all corners of their 150mbit internet. I rather have a couple of quality access points than having to fill the house with packet loss cheapos. Best of luck, subbed to this thread because this is super interesting to follow. Looking forward how this all pans out for you.
 
Every access point will be connected to the local network through a wire. I think the access point will be Xclaim Xi-3.
 
Every access point will be connected to the local network through a wire. I think the access point will be Xclaim Xi-3.


From a network engineer point of view, if you have a 3 access points its must better to have a WLAN controller to manage the signal from these 3 access points, also the experience will be much better for the users, so you can have one network (one SSID) in all the house rather than disconnect and connect to each access point when you are next to it.

Cisco has a WLAN controller but it's a enterprise solution which can manage up to 25 access points so I am not sure how cost effective it will be to install it in your house. I am not sure if other brands has a better home solutions.

For the access points try to get 802.11AC wave 2 so you can get the best speed when transferring a videos over the network.

Wish you all the best ..
 
  • Like
Reactions: Floris
From a network engineer point of view, if you have a 3 access points its must better to have a WLAN controller to manage the signal from these 3 access points, also the experience will be much better for the users, so you can have one network (one SSID) in all the house rather than disconnect and connect to each access point when you are next to it.

Cisco has a WLAN controller but it's a enterprise solution which can manage up to 25 access points so I am not sure how cost effective it will be to install it in your house. I am not sure if other brands has a better home solutions.

For the access points try to get 802.11AC wave 2 so you can get the best speed when transferring a videos over the network.

Wish you all the best ..

Most routers have the ability to run in repeater mode, meaning that there's just one local network with a single SSID.
 
Most routers have the ability to run in repeater mode, meaning that there's just one local network with a single SSID.

My first recommendation would be to stay in the Apple ecosystem.

If you follow this layout you will get seamless hand-off from 1 AP to the next and the speed of the Airports really can't be beat.

https://support.apple.com/en-us/HT202056
See:
Multiple Wi-Fi base station network types

Use the wired setup.


I do a lot of enterprise wifi setup and 'as-built' wifi design (meaning take what the engineer has spec'ed out, deploy it and change it until it works as intended) and I think the hassle of trying to use ubiquiti (kinda buggy software!) or the huge expense of Cisco, etc (not to mention the everest-like learning curve to make them really dance) probably isn't worth it.

True the Airport routers are pretty dumbed-down, but they are fast, reliable and all the Apple cloud stuff works really good. If you need more router features, I would run OS X Server on a machine (it will automatically sync and configure a lot the settings on the Airport).

I am familiar with brick/concrete construction, I would start with 3 access points... (I have 4 in my house, with similar wifi-hating concrete construction but it worked just fine with 3).
 
@MatrixH Without doing a full site survey, I would recommend setup 2 or 3. As for APs, I highly recommend Apple AirPort Extremes or the Ubiquiti UniFi line. I deploy networks all the time, and could create a list of all of the parts I use in a situation like that.
 
  • Like
Reactions: Hilbert92
I like AirPort Extremes, but I think it will be better if the APs are placed in the selling. Ubiquity UniFi is a great product but too anvanced for my setup. I think Xclaim is very simple like AirPort Extremes, but they can be mounted in the selling, so I think Xclaim is the best choice.

Do you really think AirPort Extremes will be a better solution than Xclaim Xi-3?
 
I like AirPort Extremes, but I think it will be better if the APs are placed in the selling. Ubiquity UniFi is a great product but too anvanced for my setup. I think Xclaim is very simple like AirPort Extremes, but they can be mounted in the selling, so I think Xclaim is the best choice.

Do you really think AirPort Extremes will be a better solution than Xclaim Xi-3?

No. I think that you are honestly missing the big picture here. All three APs mentioned in this thread have their pros and their cons. The AirPorts are dead simple, but are at best a prosumer class access point with no PoE capability which is a necessity for ceiling installation. Let's rule the AirPorts out...

The Xclaim is a nice product, and I know a few people that have deployed them. There were some issues initially due to bugs in the firmware, but that is to be expected with any new product. I have not seen their long term sustainability, and ultimately it is up to your discretion on what you purchase. However, my vote still stands on UniFi, while you may believe that the controller is hard to configure, once you see just how simplistic UniFi is you will love it. There are a lot of self healing features in the UniFi system, and once they are configured you do not need to access the controller again. I use UniFi in about five home environments and two schools and I have never had one miss a beat.

A network is only as good as its weakest link, so regardless of what you purchase, invest in quality hardware and wire.
 
  • Like
Reactions: hobowankenobi
I would honestly go with Ubiquity Unifi equipment and a POE switch. Call it a day. You can install their unifi controller software on a computer to configure the AP's after that you wont need it again unless you need to make some changes. The interface once logged in and playing around is pretty simple. You could use 3 of their Unifi AP AC lite or Unifi AP AC pros and a toughswitch 8 port POE switch.
 
If you go with Ubiquity Unifi some of their stuff uses standard POE switch, and some it's proprietary power injectors.

I have two of their APs and I love 'em. Will expend to third one at some point.

Also they are or have released a new line recently that I THINK is for home users.
 
If you go with Ubiquity Unifi some of their stuff uses standard POE switch, and some it's proprietary power injectors.

The regular UniFi APs and AP Long Range models use proprietary PoE, but the UniFi AP Pros and other models all use standard 802.3 PoE.
 
We Have the Ubiquity UNIFI AC Long Range in a 5 level concrete walled home with rooftop lounge. We have one on each floor, and we get 99% signal every where.

I've run tests turning of AP on alternating floors and still receive no less than 90% signal.

Also, we run the Controller software on Amazon Web Services Ubuntu Image (Free tier). and its great. we can monitor our system remotely and not have to worry about having a computer always up and running at the house.
 
  • Like
Reactions: adam9c1
We Have the Ubiquity UNIFI AC Long Range in a 5 level concrete walled home with rooftop lounge. We have one on each floor, and we get 99% signal every where.

I've run tests turning of AP on alternating floors and still receive no less than 90% signal.

Also, we run the Controller software on Amazon Web Services Ubuntu Image (Free tier). and its great. we can monitor our system remotely and not have to worry about having a computer always up and running at the house.

Any info on the AWS?
I have two of the LR models and the software running on a Win7 VM, but free is good too.

Here is some info on the Amplifi
https://www.amplifi.com/
http://arstechnica.com/gadgets/2016...me-networking-with-new-amplifi-802-11ac-gear/
http://www.slashgear.com/ubiquiti-amplifi-is-a-heavy-duty-wi-fi-system-for-homes-10439480/
 
  • Like
Reactions: jkeating2005
Any info on the AWS?
I have two of the LR models and the software running on a Win7 VM, but free is good too.

Here is some info on the Amplifi
https://www.amplifi.com/
http://arstechnica.com/gadgets/2016...me-networking-with-new-amplifi-802-11ac-gear/
http://www.slashgear.com/ubiquiti-amplifi-is-a-heavy-duty-wi-fi-system-for-homes-10439480/

Sure. you'll need a little bit of command line knowledge and some basic linux knowledge.

Here is the direct instructions from Ubiquity. If you need a how to video or anything, I could probably whip one up pretty quickly. Also you can make a backup from the controller on windows and import it directly to your Linux controller.

https://help.ubnt.com/hc/en-us/arti...UniFi-Cloud-Controller-on-Amazon-Web-Services

You'll also need to SSH into the Devices and have them look for the controller directly with the Elastic IP you've gotten from AWS

https://help.ubnt.com/hc/en-us/arti...yer-3-methods-for-UAP-adoption-and-management
 
I haven't tried the Ubiquity Unifi series, but I have read many great things about them and would suggest you look into them.

I have set up an extended-range wifi network at a campsite that I volunteer at (multiple outbuildings) and I have used a combination of Engenius long-range AP's and D-Link routers. However, if I could start over and do it again (and honestly, I might have to) I would look into Unifi. The Engenius devices have worked but are starting to get flaky. It doesn't help that the camp is a true rural outdoor environment complete with lightning strikes, power surges, brownouts, etc.
 
Ubiquity does carry outdoor directional antennas...

About their two AC LR APs I have. Foolproof. I have had one since last December and one since February or so. Prior to that I was running an older model as a test bed.
Really solid stuff.
 
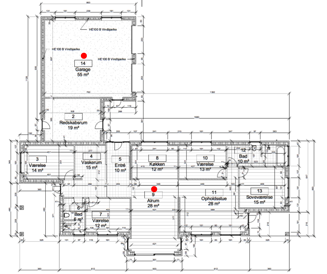
We are building a new brickhouse, both inner and outer walls are made of bricks.

We want a fast and stable Wifi, that will cover the whole house.

How many access points do we need, and where should we place them?

Our own suggestions looks like this: (the red dots is a access point)

1
r8HqS.png


2
LfAus.png


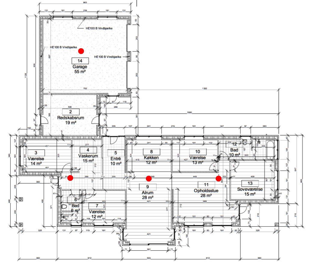
3
CTvIP.png


4
PAjD.png


Which one do you thinks will work best, and do you maybe have a better solution?
4 if the rear doors lead to garden space. I'd avoid airports for this setup
 
The AirPorts are great if you have a nice desk to sit them on, or a server rack where they can happily reside. Sadly, Apple got rid of the ability to use PoE and mount them on ceilings and walls in the mid-2000s, which alienates them in this case. I stand with UniFi, hands down...
 
I've gone through most of these, from a 4 AirportAC setup, to dual Linksys 1900AC, to Engenius AC to UniFi AC LR and now to 2-UniFi AP AC Pro.
This is the setup that will carry me from now on... I know I've said that before.

I will say I liked the AirportAC models but as soon as you add a 2nd, what I didn't like was that you're still paying for an all-in-one device but using it as a repeater and it still needs a 120v outlet nearby.

I am currently running an 8port UniFi POE Switch, which is actually 10 port with the dual SFP ports.
A UniFi CloudKey, 2 - UniFi AC AP Pro and a single UniFi in-wall AP.
UniFi is really a fairly simple solution to deploy. The EdgeRouters and EdgeSwitches are more complicated/less GUI.
The cloudKey plugs into a POE spot and controls the entire setup. You can connect remotely or from offsite.


IMHO if you're running ethernet to each location, a POE AP makes the most sense. You can ceiling mount it, it's out of the way and no power cords to ever worry about.
 
Register on MacRumors! This sidebar will go away, and you'll see fewer ads.