
As reported by MacTalk and News.com.au, Apple appears to be preparing to open a new flagship retail store in Brisbane, Australia. The revelation comes from development application filed with the city council that doesn't refer to Apple by name but clearly shows that the project is indeed an Apple retail store.
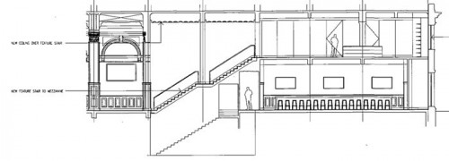
The project is said to encompass 2,000 square meters (~21,500 square feet), although one of the three floors of the facility will be dedicated to office space for the company. The location is a 1930s English Renaissance building in Brisbane's central business district.A review of the architectural drawings supplied show immediately recognisable hallmarks of Apple's retail style. Areas for the Genius Bar, Kids Corner and iPod and iPhone accessories can be found alongside Apple's trademark sugarmaple tables and characteristic stools. A section drawing showing the store's Queen Street frontage includes a coyly reserved square area for "internally illuminated store signage" directly above the entryway which will feature twin reconstructed glazed doors.
Apple currently operates ten retail stores in Australia, including one in Chermside just outside of Brisbane and one in Robina about 50 miles from Brisbane in the country's Gold Coast region.
Article Link: New Flagship Apple Store Coming to Brisbane, Australia